- Tor (b x h ca. 2,95 x 2,25)
- WC´s
- Dusche
- Teeküche
- Stromwürfel
- Starkstrom
- Außenjalousien
- Barrierefreier Zugang
- 10 Außenstellplätze
- 1 Garage
Ein Energieausweis liegt noch nicht vor.
Hagellocher Weg 32
Ebenerdige Andienung * Starkstrom * Nähe B28
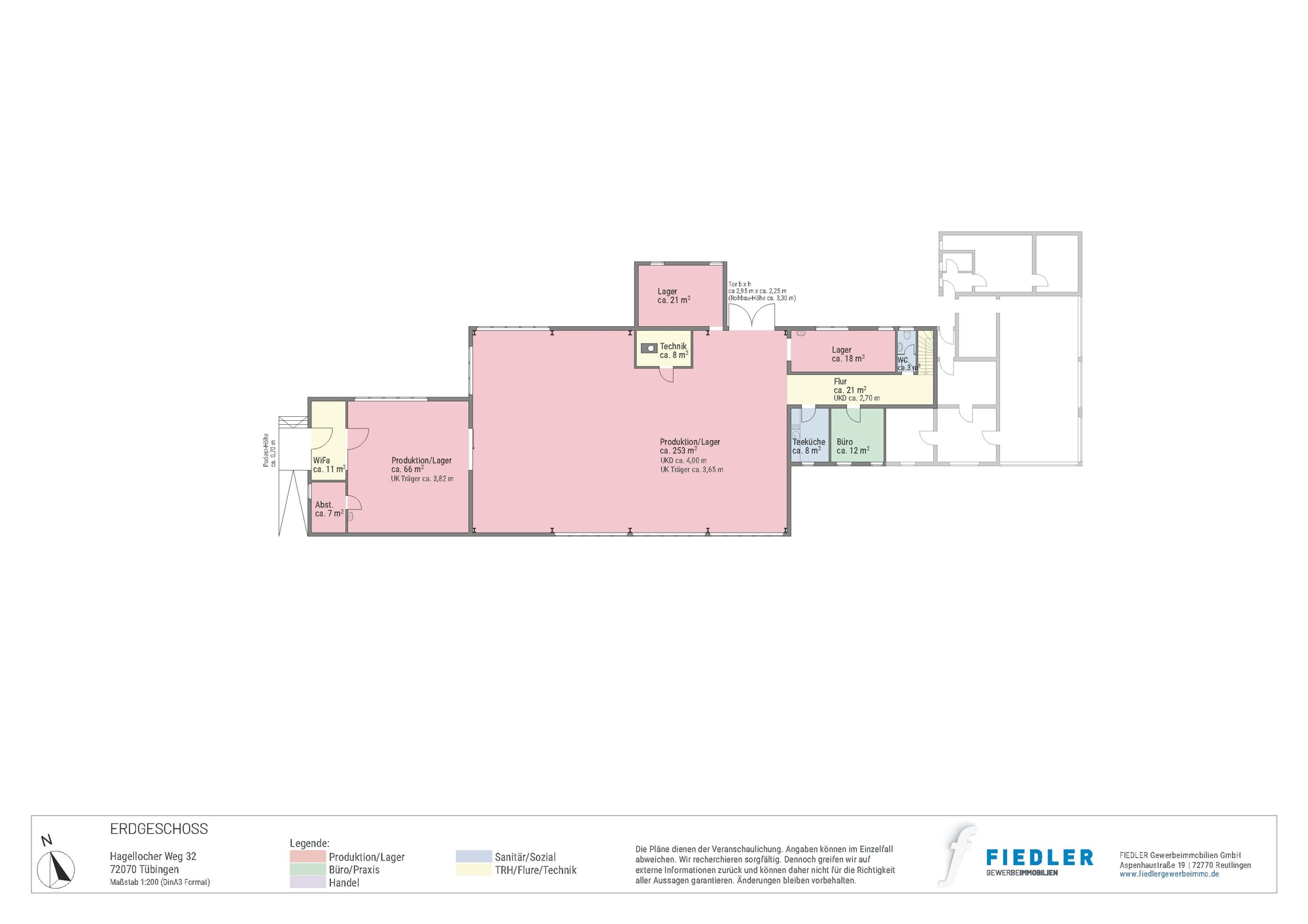
In Tübingen steht eine Halle mit insgesamt ca. 512 m² als Teileigentumt zum Kauf. Der Gebäudekomplex wurde 1971 errichtet und im Jahr 1995 aufgeteilt. In diesem Zuge wurde eine Teilungserklärung mit mehreren Einheiten erstellt sowie die Heizung, die Küche, der Eingangsbereich und teilweise die Fenster erneuert. Im Jahr 2008 erfolgte eine Dachsanierung.
Die Halle umfasst im Erdgeschoss ca. 250 m² mit einem großzügigen Vorraum von ca. 65 m². Durch die stützenfreie Bauweise sowie die Ausstattung mit Stromwürfeln und Starkstrom weist die Halle eine flexible Nutzung auf. Zudem sorgen zahlreiche Fenster für eine gute natürliche Belichtung. Ergänzt wird die Fläche durch zwei angrenzende Nebenräume, die flexibel als Büro oder Lager genutzt werden können. Ein WC, ein Büroraum sowie ein Aufenthaltsraum mit Teeküche sind ebenfalls vorhanden. Im Untergeschoss befinden sich zwei Lagerräume sowie ein Duschbad.
Der Zugang zur Einheit erfolgt sowohl ebenerdig über ein überdachtes Tor im Hof direkt in die Halle als auch über den Haupteingang, der über ein Podest mit Treppe und Rampe erreichbar ist.
Zur Einheit gehören insgesamt 10 Außenstellplätze sowie eine Garage.
Ausstattung
Pläne
Lage
72070 Tübingen, Hagellocher Weg 32
Die Gewerbeeinheit befindet sich in einem Mischgebiet in der Tübinger Weststadt im Hagellocher Weg. Der ÖPNV ist über mehrere fußläufig erreichbare Bushaltestellen sowie den nahegelegenen Westbahnhof gut erreichbar. Die umliegenden Städte Reutlingen, Herrenberg und Rottenburg sind in ca. 15-20 Minuten Fahrzeit erreichbar. In der Nachbarschaft befinden sich neben verschiedenen Gewerbebetrieben auch Wohnbebauungen.
Google Maps anzeigen
Energieausweis
Wichtiger Hinweis
Wir bitten um Ihr Verständnis dafür, dass wir in der Internetpräsentation keine Preise nennen können. Die Preisfindung bei Gewerbeobjekten ist erst möglich, wenn der Bedarf eines Interessenten erfasst sowie eventuell notwendige Gebäudeanpassungen und vertragliche Rahmenbedingungen bekannt sind. Deshalb sollten Preis- und Finanzierungsfragen in einem persönlichen Gespräch geklärt werden.

