- Altbau: 2-Flügeltore (bxh= ca. 2,72x2,65 m; ca. 2,60x2,75 m)
- Erweiterungsbau: 2 Tore (bxh= ca. 4,33x2,65 m; ca. 3,20x2,75 m)
- Rampe h: ca. 1,19m
- Starkstrom- und Druckluftleitungen
- 2 Ladeluken
- Halle tw. Fußbodenheizung
- Garage: 2 Stellplätze
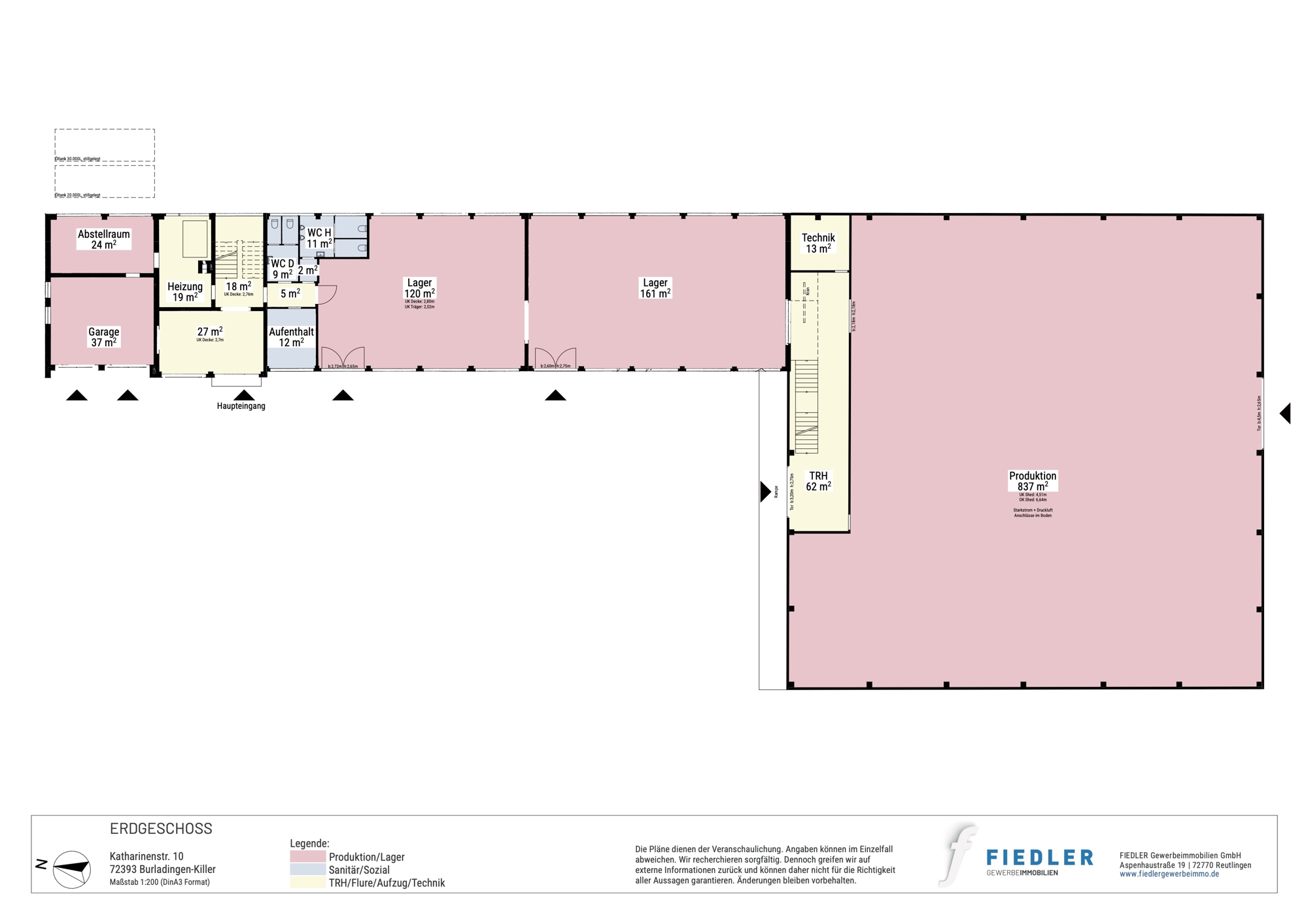
Katharinenstraße 10
Produktion/Lager * Freifläche * Erweiterungsgrundstück
In Burladingen befindet sich ein großzügiger Gewerbekomplex bestehend aus Lager-, Produktions- und Büroflächen mit einer Gesamtfläche von ca. 2.151 m² auf einem ca. 9.324 m² großen Grundstück mit zusätzlichen Entwicklungs- bzw. Erweiterungsflächen. Auf dem Grundstück befindet sich zudem ein vermietetes Mehrfamilienhaus, das Bestandteil des Verkaufs ist.
Der Gebäudebestand setzt sich aus mehreren Bauabschnitten zusammen, deren ältester Teil aus den späten 1950er-Jahren stammt. In den folgenden Jahrzehnten wurde der Komplex sukzessive erweitert, darunter im Jahr 1974 um die großzügige, quadratische Produktionshalle.
Der Altbau bietet im Erdgeschoss Lagerflächen, die über eine Heizung sowie Sozial- und Sanitärbereiche verfügen. Das 1. Obergeschoss umfasst Büroflächen sowie einen großzügigen, stützenfreien Saal, der sich für leichte Produktion oder vielfältige Nutzungsmöglichkeiten eignet. Aufgrund der Hanglage ist eine Rampenandienung über die Gebäuderückseite möglich. Zusätzliche Lagerkapazitäten bietet der Dachboden.
Die ca. 900 m² große, quadratische Produktionshalle ist ebenfalls stützenfrei errichtet und verfügt über ein Sheddach mit einer lichten Höhe von ca. 4,5 m. Eine Rampenandienung ist vorhanden; ein Teilbereich ist zudem mit Fußbodenheizung ausgestattet. Im Unter- bzw. Hanggeschoss befinden sich weitere Lagerflächen, Sanitär- und Sozialräume sowie eine Werkstatt. Dank der Hanglage kann dieses Geschoss ebenerdig angedient werden und verfügt über Fenster, die für natürliche Belichtung sorgen.
Sowohl im Altbau als auch im Erweiterungsbau bestehen Bodenanschlüsse für Starkstrom und Druckluft. Eine Garage mit zwei Stellplätzen ist vorhanden; zusätzliche Parkflächen stehen auf dem Hof zur Verfügung.
Der gesamte Gebäudekomplex wurde bis 2018 zur Produktion genutzt und ist seitdem teilweise vermietet. Der aktuelle Zustand lässt Raum für Modernisierungs- und Anpassungsmaßnahmen, um das Objekt auf individuelle betriebliche Anforderungen abzustimmen.
Ausstattung
Pläne
Lage
72393 Burladingen / Killer, Katharinenstraße 10
Die Lager und Produktionshalle befindet sich in der Katharinenstraße 10 in Burladingen.
In etwa acht Gehminuten erreicht man die Haltestelle Killer, von der aus der Bahnhof in Burladingen in rund neun Minuten erreichbar ist.
Mit dem Auto ist der Standort über die Bundesstraßen B32 erreichbar. In ca. 15 Minuten gelangt man nach Hechingen. Balingen erreicht man über die B27 und B32 in ca. 23 Minuten, Bodelshausen über die B32 in ca. 16 Minuten.
Die Lage befindet sich in einem ruhigen Umfeld, das hauptsächlich von Wohnbebauung geprägt ist.
Google Maps anzeigen

