- 5 Garagen
- 1 Überdachter Lager- oder Stellplatz
- 30 Pkw-Stellplätze
- Werbepylon
- 2 Fahnenstangen
- Erdwärme- und Gasheizung
- PV-Anlagen
Gebäude Nr. 44:
- Lastenaufzug (Tragkraft 900 kg/12 Personen)
- Klimaanlage
- LED-Beleuchtung
- Elektrische Außenjalousien (2. OG)
- Zutrittskontrollsystem (Chip oder Smartphone)
- 1 kleine Rampe (h=0,6 m) mit 2-flg. Tor (bxh=ca. 1,94 x 2,32 m)
- 2-flg. Tür zum Einbringen von Maschinen (1. OG)
Gebäude Nr. 42:
- Mehrere ebenerdige Tore mit Durchfahrt
- Montagegrube (Halle 3)
- Druckluftleitungen
- Gas-Dunkelstrahler
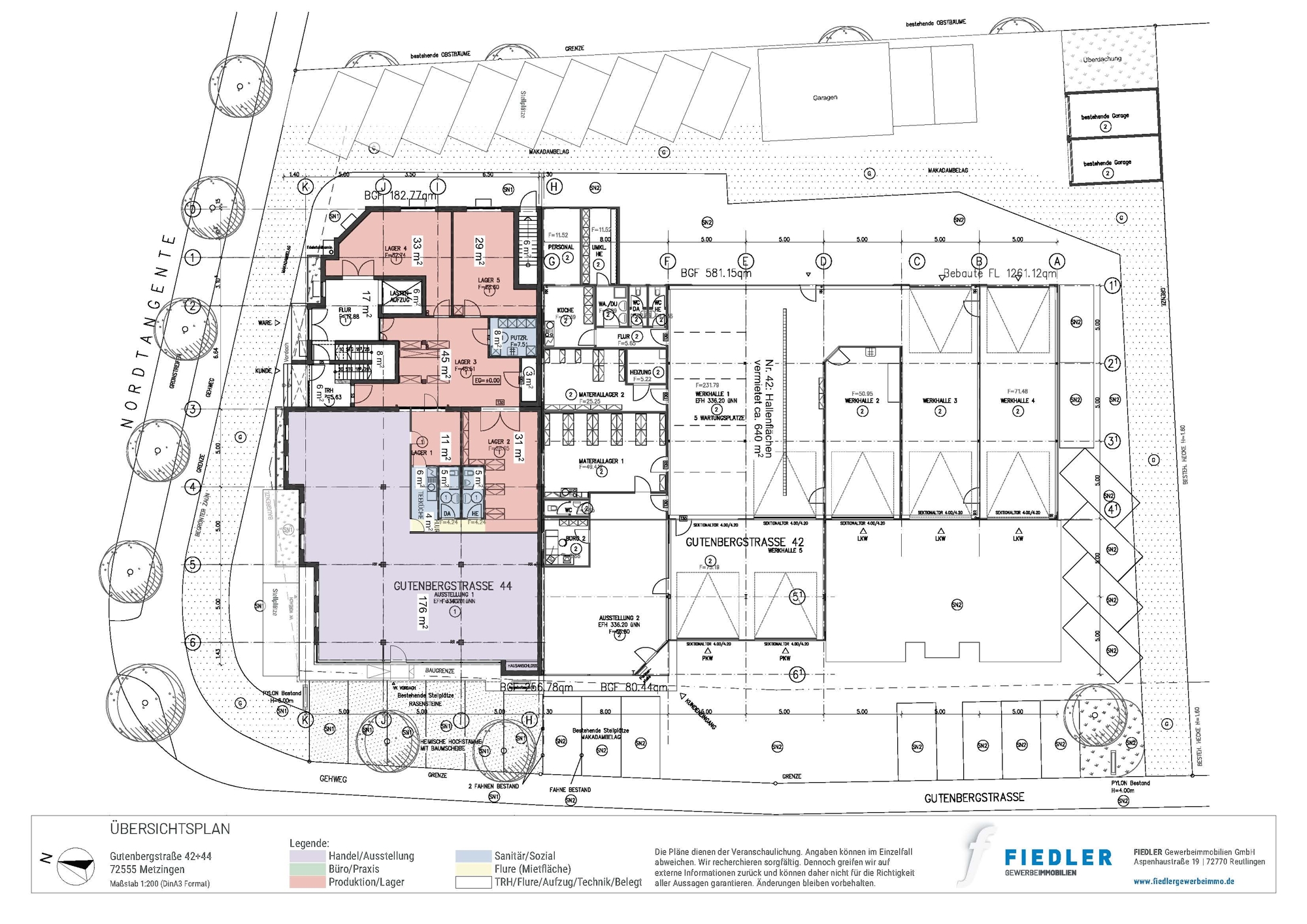
Gutenbergstraße 44
Produktion/Lager/Büro/Ausstellung * Tore * Umfahrung
Das Gewerbegebäude besticht durch die Kombination von vielfältigen Nutzungen. Es gibt sowohl Ausstellungs- und Verkaufsflächen als auch Büro-, Produktions- und Lagerräume. Aktuell stehen mehrere Einheiten mit insgesamt ca. 955 m² zur Vermietung. Ein Verkauf des Gewerbeareals, inklusive des langfristig vermieteten Nachbargebäudes mit mehreren Werkhallen, ist nach Absprache möglich (insgesamt ca. 1.900 m² Gebäudeflächen).
Die drei Etagen lassen sich in jeweils zwei Einheiten zwischen rund 170-220 m² aufteilen. Zudem gibt es eine Teilunterkellerung mit einigen Lager- und Technikräumen und zusätzlichem Außenzugang. Das Gebäude ist über ein zentrales Treppenhaus und einen Lastenaufzug erschlossen. Im Erdgeschoss kann außerdem über eine kleine Rampe mit 2-flg. Tor angedient werden.
Die Ausstellungs- und Verkaufsfläche im Erdgeschoss verfügt über einen überdachten Eingang und ca. 12 Lfd. Meter Schaufenster. Im hinteren Gebäudeteil sind Lager- und Produktionsräume sowie Toiletten und eine Teeküche untergebracht. Die lichte Höhe beträgt ca. 3 m UK der abgehängten Decke.
Im 1. Obergeschoss gibt es eine Büroeinheit mit 4 Büroräumen, einem Aufenthaltsraum mit Küche, Toiletten und Umkleideräume. Die zweite Einheit wurde als Produktions- und Lagerfläche mit einer Küchenzeile und einem WC genutzt. Über eine 2-flg. Tür können Maschinen eingebracht werden.
Im 2. Obergeschoss sind zwei Büroeinheiten untergebracht mit Dachterrassen, Toiletten und Teeküchen. Die kleinere Einheit ist vermietet.
Das Gebäude ist mit einer Klimatisierung, LED-Beleuchtung und einem Zutrittskontrollsystem ausgestattet. Die Wärmelieferung erfolgt über eine Erdwärmepumpe und eine Gasheizung. Teilbereiche sind mit Druckluftleitungen versorgt. Vor dem Gebäude gibt es 2 Fahnenmasten und einen Werbepylon.
Das Gesamtgrundstück (2.827 m²) verfügt über eine Umfahrung der Gebäude, insgesamt 30 Pkw-Stellplätze, 5 Garagen und eine Überdachung.
Ausstattung
Pläne
Lage
72555 Metzingen, Gutenbergstraße 44
Die Immobilie befindet sich in Metzingen, knapp 2 km vom Stadtzentrum entfernt. Metzingen bietet wirtschaftliche Stärke mit vorteilhaften Standortfaktoren. Die Outlet-City Metzingen zieht internationale Besucher an und trägt zur Infrastruktur bei.
Das Gewerbegebäude hat eine gute Verkehrsanbindung. In weniger als 5 Autominuten sind die Bundesstraßen B 312, B 313 und B 28 erreichbar und damit effektive Anbindungen für Geschäftsreisen und Anlieferungen. Zur Autobahn A 8 in Wendlingen a. N. als auch dem Flughafen Stuttgart gelangt man in ungefähr 20 Minuten Fahrzeit. Ebenso sind umliegende Städte in wenigen Kilometern gut erreichbar - Reutlingen (ca. 8 km), Nürtingen (ca. 12 km), Tübingen (ca. 20 km).
Die Nähe zum öffentlichen Personennahverkehr ist ein Vorteil. Direkt vor dem Gebäude befindet sich die Bushaltestelle Gutenbergstraße-Mitte, der Bahnhof Metzingen ist etwa 2 km entfernt, was schnelle Verbindungen zu umliegenden Städten gewährleistet.
Zudem gibt es Dienstleistungsangebote im Umfeld: Aldi Süd ist direkt vor Ort und weiterer Einzelhandel sowie Apotheken und Ärzte sind gut erreichbar, was für die tägliche Versorgung vorteilhaft ist. Die Nachbarschaft ist geprägt durch Betriebe aus der Automobil- und Baubranche sowie Dienstleistungsunternehmen.
Google Maps anzeigen
Energieausweis
Wichtiger Hinweis
Wir bitten um Ihr Verständnis dafür, dass wir in der Internetpräsentation keine Preise nennen können. Die Preisfindung bei Gewerbeobjekten ist erst möglich, wenn der Bedarf eines Interessenten erfasst sowie eventuell notwendige Gebäudeanpassungen und vertragliche Rahmenbedingungen bekannt sind. Deshalb sollten Preis- und Finanzierungsfragen in einem persönlichen Gespräch geklärt werden.

