- 2-flg. Stahltor (bxh=ca. 1,85x2,09 m)
- 2-flg. Stahltor (bxh=ca. 2,16x2,35 m)
- Notausgang 2-flg. Stahltor (bxh=ca. 1,93x1,95 m)
- Automatik-Glasschiebetüren mit Windfang
- Aufzug (Tragkraft 1.500 kg/20 Personen)
- Fenster mit Sonnenschutz, teilweise vergittert
Münsinger Straße 36
Verkaufsfläche * Großer Parkplatz * Andienungshof
Das Gebäude wurde in zwei Bauabschnitten (1963/1980) erstellt und seit 1975 als Lebensmittelmarkt betrieben. Das ca. 2.043 m² große Gebäude mit einem 4.097 m² großen Grundstück steht zum Kauf oder zur Miete (ca. 2.010 m² Mietfläche).
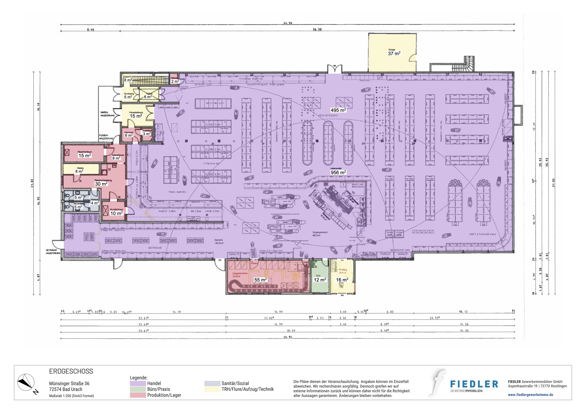
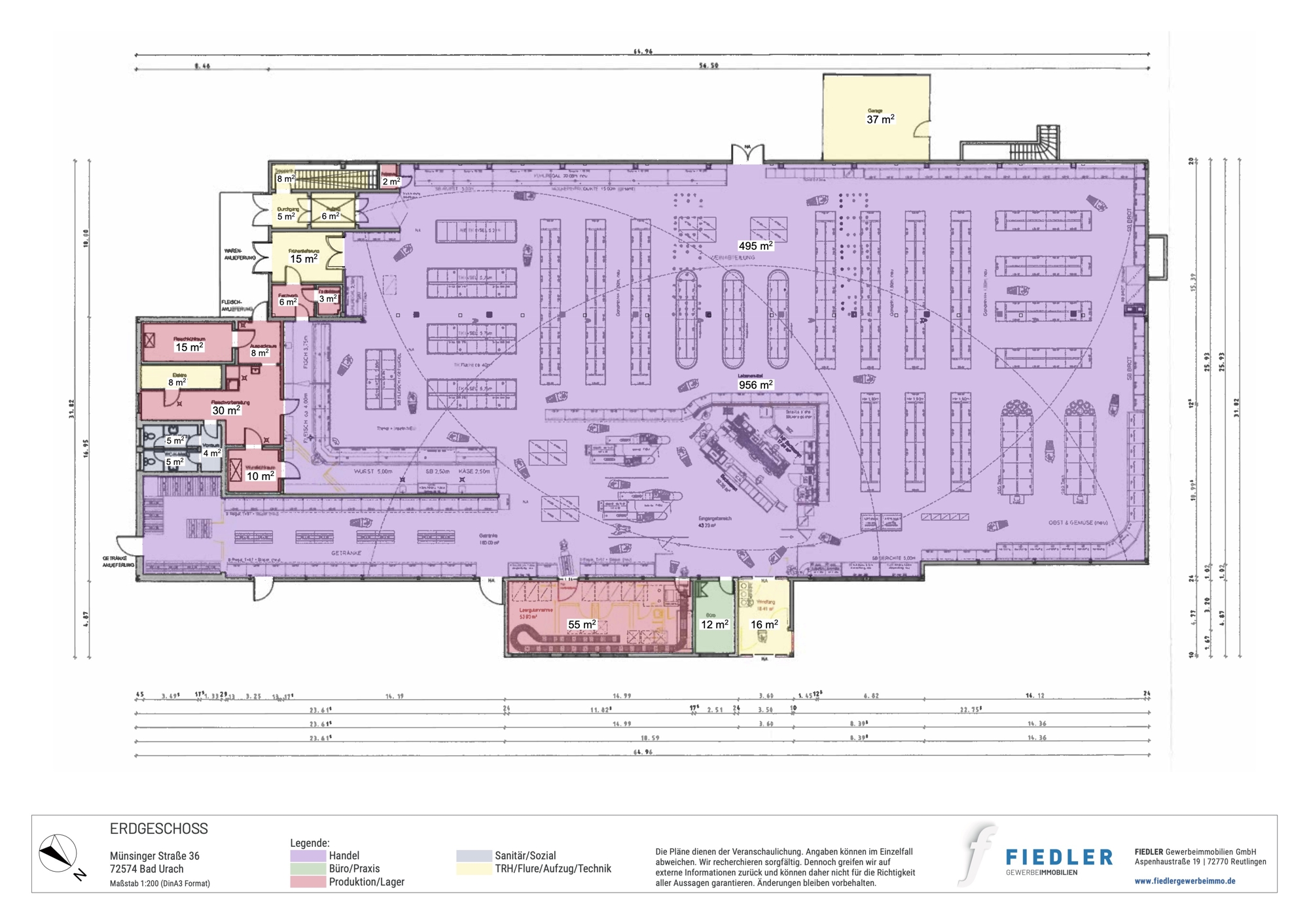
Im Erdgeschoss gibt es aktuell ca. 1.440 m² Verkaufsfläche und ca. 185 m² Nebenräume wie Lager-, Vorbereitungs-, Sanitär- und Büroflächen. Der Kundeneingang ist als Windfang mit automatischen Glas-Schiebetüren ausgestattet. Die Böden sind gefliest. Der 1. Bauabschnitt hat eine lichte Höhe von ca. 2,9 m UK Sheddach und im Anbau sind es ca. 3,45 m UK Stahlträger.
Die Anlieferung erfolgt über einen eingezäunten Hofbereich. Eine überdachte Andienung mit zwei ebenerdigen Toren ist vorhanden.
Die Teilunterkellerung ist über einen Aufzug mit 1.500 kg Tragkraft für bis zu 4 Paletten andienbar. Zudem gibt es ein Treppenhaus und einen separaten Außenzugang. In der unteren Etage befinden sich ca. 292 m² Lagerflächen und ca. 117 m² Nebenräume wie Toiletten, Umkleiden und ein Aufenthaltsraum mit Küche. Die lichte Höhe beträgt hier ca. 2,7 m UK Träger und im Lager bis ca. 2,9 m UK Träger und ca. 3,25 m UK Decke.
Das Grundstück verfügt über Zufahrten von zwei Straßenseiten. Neben dem Andienungshof bietet es einen großen Parkplatz mit bis zu 60 Pkw-Stellplätzen, Abstellflächen für Einkaufswagen und eine Doppelgarage.
Ausstattung
Pläne

Lage
72574 Bad Urach, Münsinger Straße 36
Das Gebäude befindet sich in einem gemischten Gebiet mit Wohnbebauung, einem Seniorenzentrum, einer Kirche und kleineren Gewerbebetrieben. Weitere Einkaufsmöglichkeiten sind in ca. 500 m Entfernung im Zentrum von Bad Urach oder südlich der Erms angesiedelt. Die Anbindung an den ÖPNV ist fußläufig - über eine Bushaltestelle in ca. 450 m sowie den Hauptbahnhof mit Busbahnhof in ca. 650 m Entfernung - gegeben.
Es besteht ein schneller Anschluss (ca. 1 Autominuten) zu den Bundesstraßen B 28 Herrenberg-Ulm und die B 465 Kirchheim/Teck-Ehingen (Donau). Hier gelangt man zu den umliegenden Städten Metzingen, Münsingen oder Reutlingen in ca. 10 bis 15 km Entfernung.
Die Autobahn A 8 Stuttgart-München mit Auffahrt in Kirchheim unter Teck erreicht man in etwa 30 Minuten Fahrzeit.
Google Maps anzeigen
Energieausweis
Wichtiger Hinweis
Wir bitten um Ihr Verständnis dafür, dass wir in der Internetpräsentation keine Preise nennen können. Die Preisfindung bei Gewerbeobjekten ist erst möglich, wenn der Bedarf eines Interessenten erfasst sowie eventuell notwendige Gebäudeanpassungen und vertragliche Rahmenbedingungen bekannt sind. Deshalb sollten Preis- und Finanzierungsfragen in einem persönlichen Gespräch geklärt werden.