- Personenaufzug
- Glasfaser
- Rampe
- Bar-/Küchenanschlüsse
- Dusche
- Fußbodenheizung
- Pkw-Stellplätze nach Absprache
Gemeinschaftsflächen:
WCs
Besucher-Stellplätze vorhanden
teilbar ab ca. 200 m²
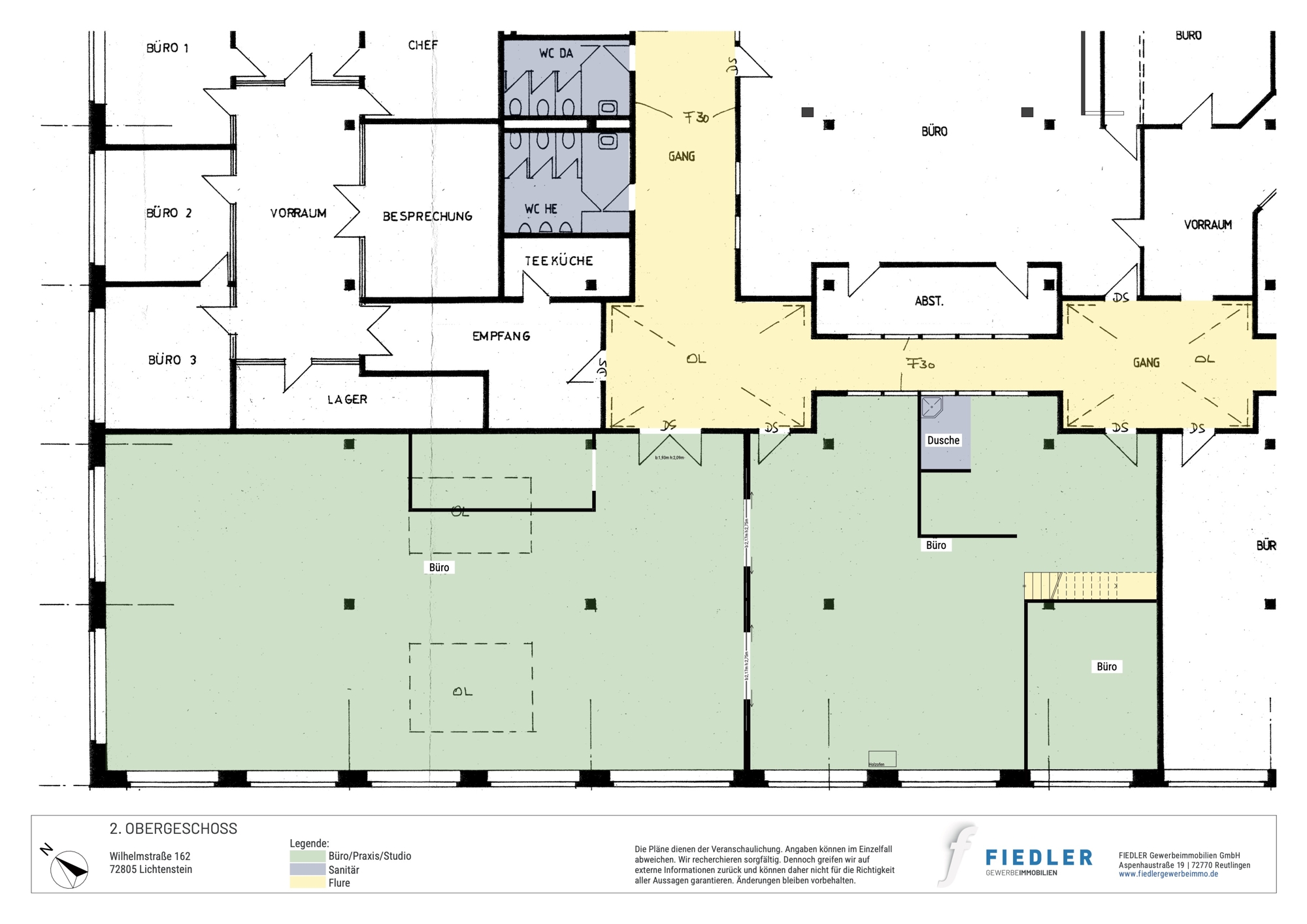
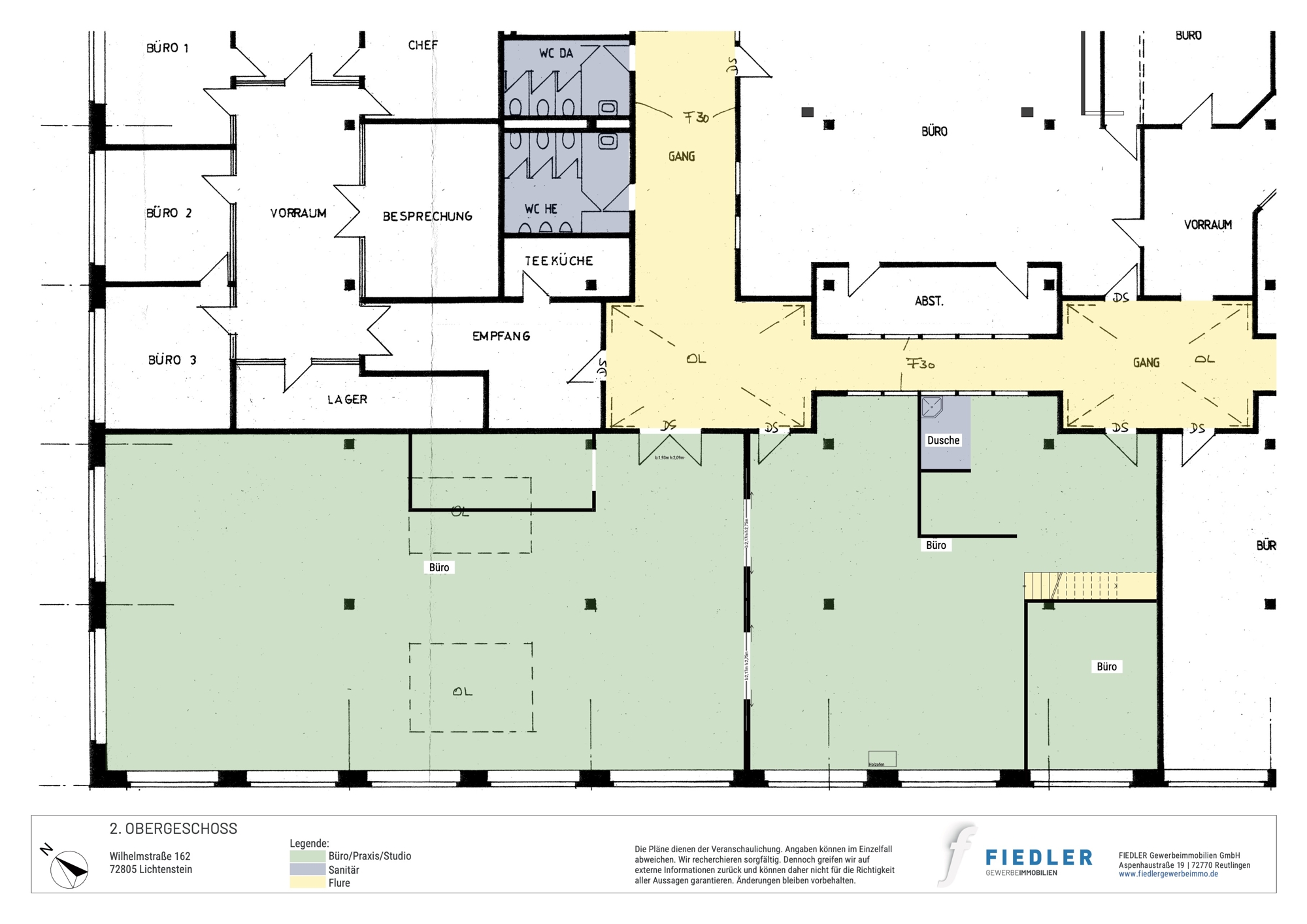
Wilhelmstraße 162
Büro-Loft * Aufzug * Glasfaser
Im BRE Gewerbepark in Lichtenstein steht im 2. Obergeschoss ein großzügiges Büro-Loft mit einer Fläche von ca. 400 m² inklusive Gemeinschaftsfläche zur Vermietung. Bei Bedarf ist diese Fläche teilbar ab 200 m². Das Gebäude wurde im Jahr 1911 errichtet und 1993 umfassend modernisiert. Im Zuge dieser Maßnahmen wurden unter anderem Aufzug, Fenster, Bodenbeläge sowie die Elektroinstallation erneuert.
Das Loft wurde bisher als Fotostudio genutzt. Es eignet sich für vielfältige Nutzungen und überzeugt durch seine helle, lichtdurchflutete Atmosphäre sowie den offenen Loft-Charakter. Die Raumhöhe von ca. 4,27 m sorgt für ein besonders großzügiges Raumgefühl.
Die integrierte Bar kann bei Bedarf zurückgebaut/umgenutzt werden. Darüber hinaus verfügt die Einheit über eine Dusche, während sich das WC in der gemeinschaftlich genutzten Fläche des Gebäudes befindet. Ein erhöhtes Podest innerhalb der Einheit bietet eine zusätzliche Nutzungsmöglichkeiten, etwa als separater Büro- oder Besprechungsbereich.
Der vorhandene Aufzug ist über das Treppenhaus oder eine Rampe zugänglich.
Die Anfahrt erfolgt über den zentralen Eingang des Gewerbeparks. Pkw-Stellplätze sind nach Absprache vorhanden.
Ausstattung
Pläne
Lage
72805 Lichtenstein, Wilhelmstraße 162
Der BRE Gewerbepark liegt am Ortseingang der Gemeinde Lichtenstein, direkt an der Durchfahrtsstraße B 312/313 (Engstingen-Metzingen), am Fuße des Albtraufs. Die Büroeinheit liegt zur ruhigen, straßenabgewandten Seite.
Eine Bushaltestelle befindet sich in ca. 300 m Entfernung und wird von vier Linien Richtung Reutlingen und Engstingen angefahren.
In weniger als 10 Minuten sind die umliegenden Gemeinden Pfullingen (ca. 3 km) und Eningen unter Achalm (ca. 6 km) sowie die Stadt Reutlingen (ca. 6 km) zu erreichen. Engstingen liegt ca. 10 Minuten, Metzingen etwa 15 Autominuten entfernt und Mössingen sowie Trochtelfingen sind innerhalb von rund 20 Minuten Fahrzeit erreichbar.
Zur B 28 (Herrenberg-Ulm) sind es ca. 8 km, die A 8 (Stuttgart-München) liegt ca. 32 km entfernt.
Google Maps anzeigen
Energieausweis
Wichtiger Hinweis
Wir bitten um Ihr Verständnis dafür, dass wir in der Internetpräsentation keine Preise nennen können. Die Preisfindung bei Gewerbeobjekten ist erst möglich, wenn der Bedarf eines Interessenten erfasst sowie eventuell notwendige Gebäudeanpassungen und vertragliche Rahmenbedingungen bekannt sind. Deshalb sollten Preis- und Finanzierungsfragen in einem persönlichen Gespräch geklärt werden.

