- 2 Rampen mit Überladebrücke
- 3 Sektionaltore
- Druckluftleitungen
- Brandmeldeanlage
- Meisterbüro
- WCs
- Werbeschild an Pylon möglich
- Pkw-Stellplätze nach Absprache
Ein Energieausweis liegt noch nicht vor.
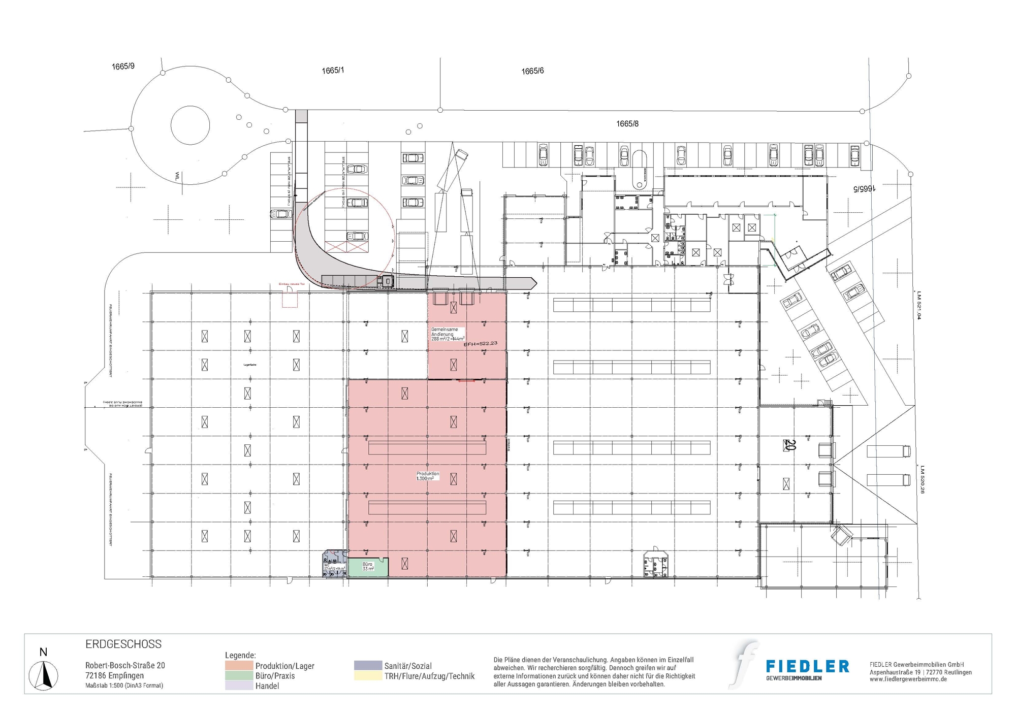
Robert-Bosch-Str. 20
Lagerfläche mit Rampen * an der Auffahrt zur A 81
In dem Produktionsgebäude der ehemaligen Fa. HEBU stehen Produktions- und Lagerflächen zur Vermietung, da ein Teilbereich des Lagers verlegt wurde.
Der Lager- und Andienungsbereich umfasst ca. 1.491 m² und wird über ein ebenerdiges Sektionaltor und zwei Rampenandienungen mit Überladebrücke und Torabdichtung bedient.
Die Produktionsfläche (rund 1.300 m²) ist durch ein Schnelllauftor, welches mit zusätzlichem Brandschutztor gesichert ist, mit der Andienung verbunden.
Ausstattung
Pläne
Lage
72186 Empfingen, Robert-Bosch-Str. 20
Das Gebäude steht im Gewerbegebiet "Autobahnkreuz" in direkter Nähe der Auffahrt Empfingen zur Bundesautobahn A 81 Stuttgart-Singen.
Horb am Neckar sowie Sulz am Neckar liegen jeweils rund 15 Fahrminuten entfernt. Nach Balingen über die B 463 sind es ca. 20 km. Die Kreisstädte Freudenstadt als auch Böblingen erreicht man in einer guten halben Stunde Fahrzeit.
Google Maps anzeigen
Energieausweis
Wichtiger Hinweis
Wir bitten um Ihr Verständnis dafür, dass wir in der Internetpräsentation keine Preise nennen können. Die Preisfindung bei Gewerbeobjekten ist erst möglich, wenn der Bedarf eines Interessenten erfasst sowie eventuell notwendige Gebäudeanpassungen und vertragliche Rahmenbedingungen bekannt sind. Deshalb sollten Preis- und Finanzierungsfragen in einem persönlichen Gespräch geklärt werden.

